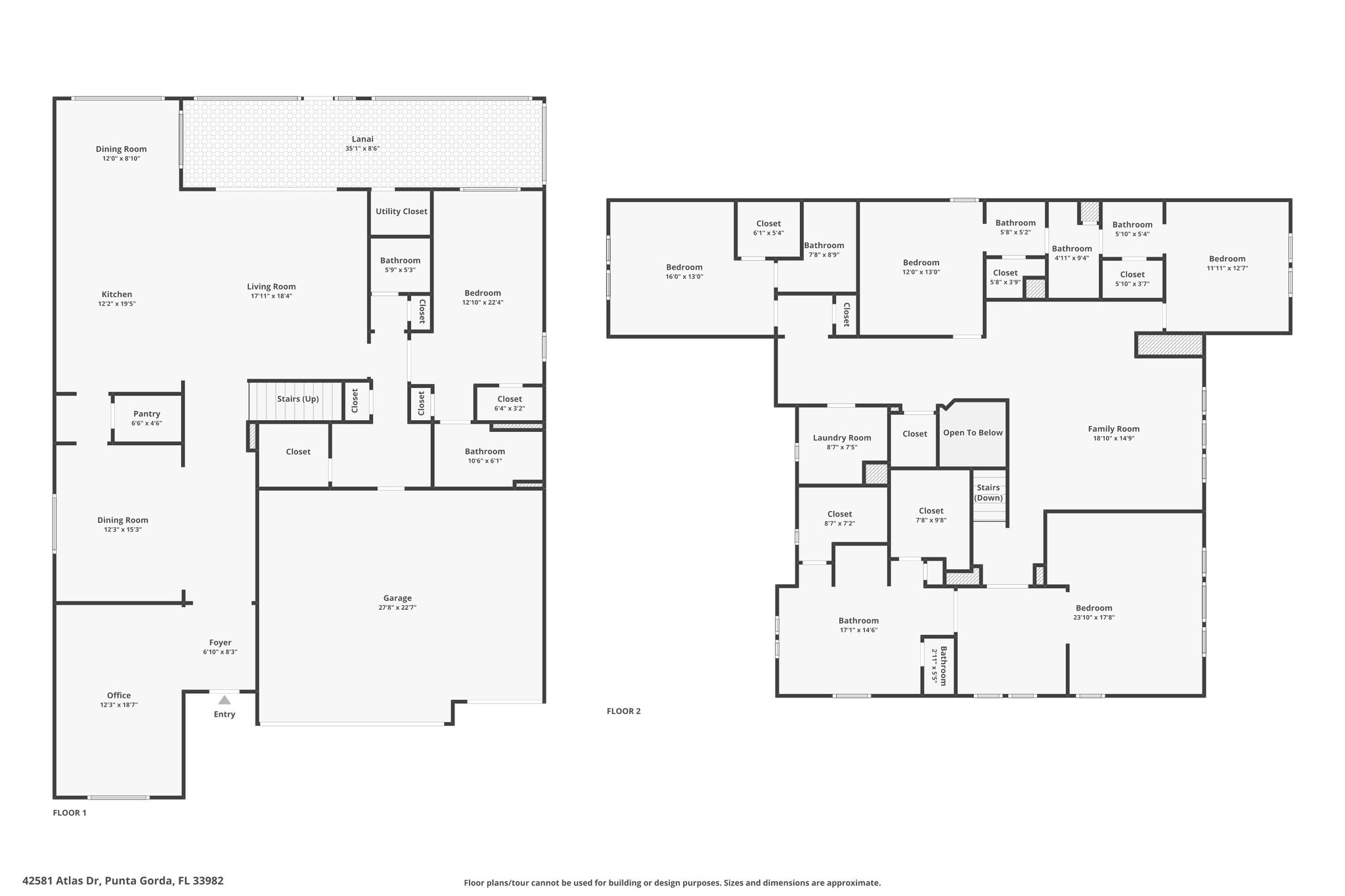
42581 Atlas Dr, Punta Gorda, FL 33982
Toggle Navigation
Images
Floor Plans
3D Tour
Map
42581 Atlas Dr
Punta Gorda, FL 33982
Scroll to Content
Images
Slideshow
Photo Grid
Hide
Previous
Next
Show more
Floor Plans
Slideshow
Photo Grid
Hide
Previous
Next
3D Tour