23448 Red Root Ct, Bonita Springs, FL 34134
Toggle Navigation
Images
Floor Plans
3D Tour
Map
23448 Red Root Ct
Bonita Springs, FL 34134
Scroll to Content
Images
Slideshow
Photo Grid
Hide
Previous
Next
Show more
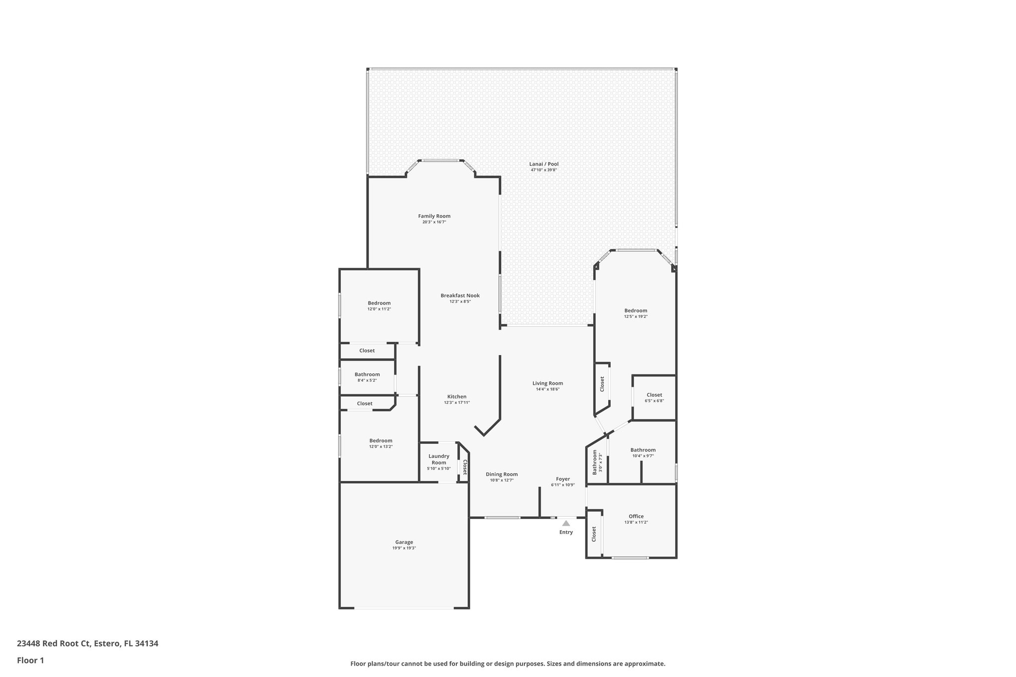
Floor Plans
Slideshow
Photo Grid
Hide
Previous
Next
3D Tour